667 Madison Avenue Sublease– One of the Best Boutique Office Buildings in New York City – Unique Branding Opportunity with Private Entrance

January 27, 2013

Lance Leighton

Founder – HedgeFundSpaces.com
New York State Licensed Real Estate Salesperson

Call 516-557-1160

667 Madison Avenue – Partial 2nd Floor – Modern Bank Sublease – New York City Office Space – Perfect For a Hedge Fund or Financial Services Tenant

Undoubtedly one of the best buildings in New York City, 667 Madison Avenue is home to many notable and prominent companies and individuals.  Located on the southeast corner of 61st Street, the building’s geographic site within The Plaza District is ideal for any principal commuting from the Upper East Side.  Due to the prestige associated with the address, there are rarely any spaces available on a direct basis with the landlord.  Accordingly, when space does become available, 667 Madison Avenue is perhaps one of the most expensive office buildings in New York City.  However, there is a very unique, affordable and furnished sublease that recently hit the market within Leonard Stern’s trophy asset.  (Click here to contact us for the asking rent.)

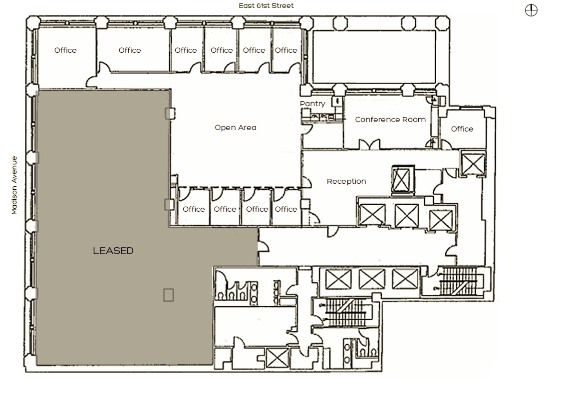
Modern Bank currently occupies the partial 2nd Floor, which is roughly 8,400 rentable square feet.  Unlike most traditional office spaces, the unit has a high-end private entrance abutting the main lobby.  Accordingly, an incoming subtenant will have branding and signage opportunities within their own exclusive vestibule.   Built with 11 offices, a large conference room, pantry, reception and open trading area, the unit is conducive to just about any type of user (i.e. hedge fund, private equity, law firm, financial services, etc.).  The floor features unusually large “eyelid windows” with low heat convectors.  Additionally, there is a tremendous amount of glass used within the premises.  This results in an abundance of natural light- even for a second floor space.

The specifics are as follows:

Premises:  Partial 2nd Floor
Size:  8,400 rsf
Possession:  Arranged
Term:  Through May 31, 2016 (landlord may entertain a long-term direct extension)
Electric:  Submetered

Actual Photos and Floorplan Below:

Recent Posts


Why 623 Fifth Avenue Is One of the

  • By Lance Leighton | January  27,  2026

623 Fifth Avenue: Discretion, Prestige, and a Crown-Jewel Penthouse in the Plaza District In the Plaza District, an address alone is no longer enough. Today’s hedge funds, private equity firms,…

Why 106 West 56th Street, also known as

  • By Lance Leighton | May  18,  2022

106 West 56th Street is perhaps the most appropriate luxury office building in Midtown for small hedge funds and boutique financial companies... Back in 2020, we posted an article featuring…

What does some of the cheapest office space

  • By Lance Leighton | January  03,  2013

Cheapest Office Space In Midtown - A Hidden Gem at SL Green's 48 East 43rd Street Typically, tenants associate subleases with cheap and affordable office space in NYC.  However, I…