The Nicest Hedge Fund Sublease in New York City

July 22, 2014

Lance Leighton

Founder – HedgeFundSpaces.com
New York State Licensed Real Estate Salesperson

Call 516-557-1160

745 Fifth Avenue – Plaza District Furnished Office Space

745 Fifth Avenue is situated on the most prestigious corridor in The Plaza District.   Surrounded by world class assets such as The GM Building, 9 West 57th Street, 650 Madison Avenue, and 712 Fifth Avenue, this art deco tower is one of the closest office buildings to Central Park.  Featuring tower floors that measure 6,175 rentable square feet each, it is one of the few assets in Manhattan to offer boutique full floors with unobstructed Central Park views (click here to see another full floor at 730 Fifth Avenue that has Central Park views and is slightly smaller).  Though these tower floors rarely become available, there is a unique, fully furnished and super high-end office space being offered for sublease (click here for information on the risks associated with a sublease).

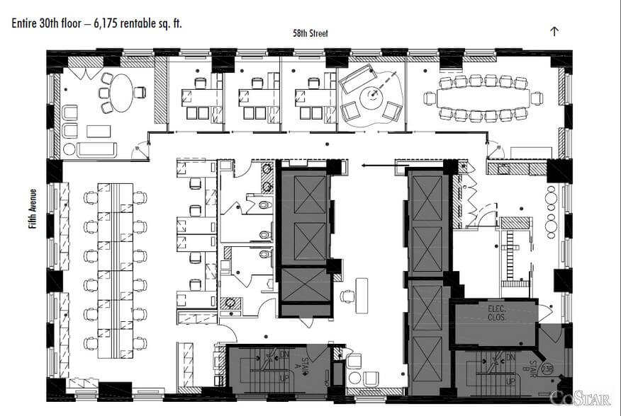
The entire 30th floor at 745 Fifth Avenue is the definition of luxury office space.  Situated on one of the highest floors in the building, there isn’t a bad view from any spot in the space.  Offered for sublease from Fundamental Advisors, the floor is currently built with 4 offices, 2 conference rooms, a contemporary pantry with stainless steel appliances, formal reception area and open trading floor (click here for a floorplan). 

Utilizing only the finest and most exotic materials, the installation consists of a tremendous amount of glass, stone and imported wood.  For the high-flying portfolio manager that enjoys smoking imported cigars (or whatever else he/she fancies to inhale), the corner office boasts a customized air filtration system that can be turned on with the touch of a button.  Undoubtedly one of the nicest spaces we have ever seen in the size range, this floor is perfect for a hedge fund, investment bank, private equity firm or any other boutique financial firm in search of a full floor presence.  The sublease term is through January 30th, 2021- click here to contact us for the asking rent.

Looking for furnished office space in New York City? Click here for our free and instant space search.

Recent Posts


Why 623 Fifth Avenue Is One of the

  • By Lance Leighton | January  27,  2026

623 Fifth Avenue: Discretion, Prestige, and a Crown-Jewel Penthouse in the Plaza District In the Plaza District, an address alone is no longer enough. Today’s hedge funds, private equity firms,…

Why 106 West 56th Street, also known as

  • By Lance Leighton | May  18,  2022

106 West 56th Street is perhaps the most appropriate luxury office building in Midtown for small hedge funds and boutique financial companies... Back in 2020, we posted an article featuring…

What does some of the cheapest office space

  • By Lance Leighton | January  03,  2013

Cheapest Office Space In Midtown - A Hidden Gem at SL Green's 48 East 43rd Street Typically, tenants associate subleases with cheap and affordable office space in NYC.  However, I…