Full Floor at 350 Park Avenue with over 3,800 Square Feet of Usable Terraces – Not Yet On The Market – 10,804 rsf

June 14, 2013

Lance Leighton

Founder – HedgeFundSpaces.com
New York State Licensed Real Estate Salesperson

Call 516-557-1160

Park Avenue Office Space with a Huge Terrace – Not yet on the market!

Known as one of the better boutique buildings on Park Avenue, 350 Park houses many notable tenants, including Ziff Brothers Investment, CICC, Peconic Partners, MFA Mortgage Investments and M&T Bank.  Resulting from highly conducive and efficient floorplates, institutional ownership and easy access to transportation, the building is 100% occupied with hedge funds and boutique financial services firms.  However, the asset has a secret office space opportunity, exclusively known by HedgeFundSpaces.com, coming available within the next several months.

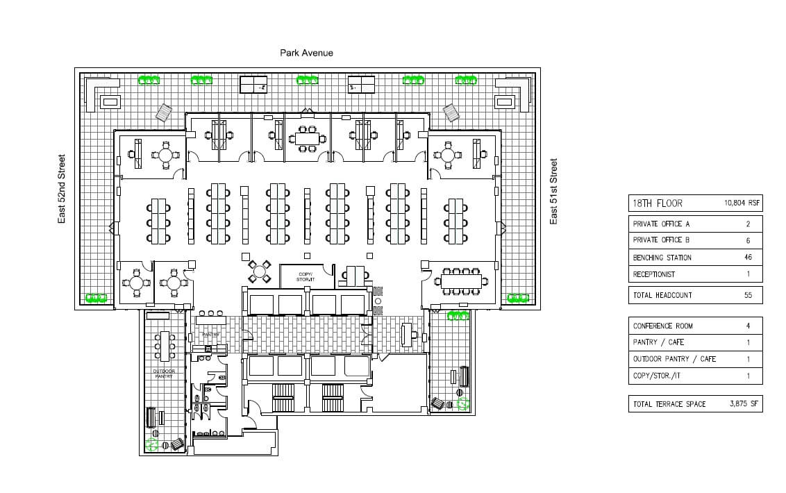
The entire 18th floor measures 10,804 rentable square feet.  The landlord, Vornado, is in the process of whiteboxing the unit and installing new bathrooms and terraces.  The terrace areas have over 3,800 square feet of outdoor spaces, which is perfect for entertaining guests and investors.  The landlord will build-to-suit an incoming tenant’s needs and is perfect for a hedge fund, private equity firm, law firm or boutique financial company. Below is a proposed trading intensive layout.  Asking rents are $120 per square foot.

 

Recent Posts


Your Own Personal Skybox Office Suite – Top

  • By Lance Leighton | April  02,  2013

Insane Ceiling Heights and Ridiculous Views to Infinity and Beyond! HedgeFundSpaces.com is committed to showcasing the most unique and high-end office spaces in New York City.  Accordingly, today our team…

Why 623 Fifth Avenue Is One of the

  • By Lance Leighton | January  27,  2026

623 Fifth Avenue: Discretion, Prestige, and a Crown-Jewel Penthouse in the Plaza District In the Plaza District, an address alone is no longer enough. Today’s hedge funds, private equity firms,…

Why 106 West 56th Street, also known as

  • By Lance Leighton | May  18,  2022

106 West 56th Street is perhaps the most appropriate luxury office building in Midtown for small hedge funds and boutique financial companies... Back in 2020, we posted an article featuring…