Coller Capital Inks Deal – Moving to 950 Third Avenue

September 10, 2012

Lance Leighton

Founder – HedgeFundSpaces.com
New York State Licensed Real Estate Salesperson

Call 516-557-1160

Coller Capital Moving to 950 Third Avenue

Coller Capital, one of the leading global investors in the private equity secondary market, signed a new lease for the entire 29th floor at 950 Third Avenue.  The investment firm will be moving to approximately 11,542 rentable square feet and have the opportunity to solely occupy an entire floor.  The company is currently at 410 Park Avenue and swapping the cache of their Park Avenue address for the economic benefits of Third Avenue.  The firm reportedly signed a 10 year commitment and the landlord will build-to-suit their needs.  

950 Third Avenue is owned by ANA Real Estate and highly appropriate for boutique financial services companies.  The relatively small floorplates allow tenants the unique opportunity to occupy an entire floor.  If you are looking for a full floor office space opportunity, click here.  

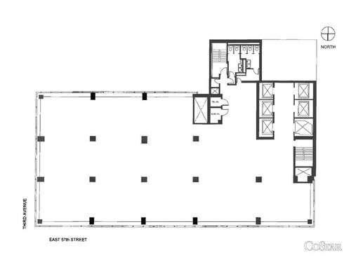
Per CoStar, the core and shell plan for Coller’s new premises can be seen below, as well as some stock building photos.

Recent Posts


YOU HAVE BEEN A GREAT TENANT… NOW GET

  • By Lance Leighton | October  15,  2012

When a landlord acquires an office building with an agenda to demolish or change the asset, they will oftentimes preface all new transactions with a termination clause.  Typically, this provision…

Year in Review – The Largest Office Relocations

  • By Lance Leighton | January  05,  2018

BlackRock, Bank of America and Third Point had Midtown Manhattan's most notable new leases. There is no question that 2017 was a solid year for New York City commercial real…

Why Your Current Real Estate Broker is WRONG

  • By Lance Leighton | December  27,  2022

The office space market is being dictated by ONE thing, Culture! As one of the more active office space brokers in New York City, I can’t help but cringe when…