Boutique Full Floor Office Space at Bryant Park

April 26, 2014

Lance Leighton

Founder – HedgeFundSpaces.com
New York State Licensed Real Estate Salesperson

Call 516-557-1160

Small Floors – Perfect for Boutique Users

As noted in previous articles, Bryant Park has become a hotbed for commercial real estate in New York City.  Home to some of of the most highly regarded Manhattan office buildings (One Bryant Park (Bank of America Tower), 1114 Avenue of the Americas (The Grace Building), 452 Fifth Avenue (HSBC Tower), 1095 Avenue of The Americas, and the highly anticipated 7 Bryant Park, office rents can easily exceed $100 per square foot.  However, for a boutique tenant such as a hedge fund, private equity firm or law firm, there are unique and well priced full floor availabilities at 489 Fifth Avenue.

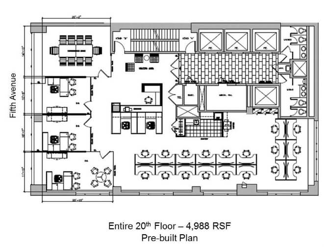
Located in one of the most geographically convenient areas (Fifth Avenue between 41st and 42nd street), the asset is a short walk from Grand Central and Penn Station. Measuring 4,988 square feet per floor, the highly efficient floorplates are conducive to a just about any user.  Though it is atypical to find full floors of this size in the area, the units are priced quite reasonably.  The landlord has several pre-built floors available and raw ones where they will build-to-suit to incoming tenant’s needs.  See below pictures of the typical finishes and test fits.

Looking for other boutique full floor spaces?  Click here to contact us about other opportunities.

 

Recent Posts


Your Own Personal Skybox Office Suite – Top

  • By Lance Leighton | April  02,  2013

Insane Ceiling Heights and Ridiculous Views to Infinity and Beyond! HedgeFundSpaces.com is committed to showcasing the most unique and high-end office spaces in New York City.  Accordingly, today our team…

Why 106 West 56th Street, also known as

  • By Lance Leighton | May  18,  2022

106 West 56th Street is perhaps the most appropriate luxury office building in Midtown for small hedge funds and boutique financial companies... Back in 2020, we posted an article featuring…

What does some of the cheapest office space

  • By Lance Leighton | January  03,  2013

Cheapest Office Space In Midtown - A Hidden Gem at SL Green's 48 East 43rd Street Typically, tenants associate subleases with cheap and affordable office space in NYC.  However, I…